租售热线 130 6262 7177
面积
80,510 square meters
地址
上海市静安区南京西路1486号
No.1486 WEST NANJING ROAD,JINGAN DISTRICT,SHANGHAI
SOHO东海广场高217米,是上海的摩天大楼之一,更是上海南京西路的地标性建筑。
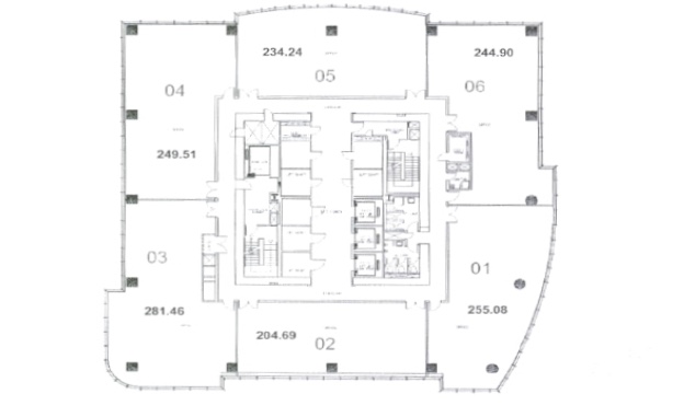
SOHO东海广场地处上海南京西路中央商务区中心位置,总建筑面积为80510平米,其中写字楼面积为67829平米,目前入驻的企业95%以上均为国内外知名公司;1-2层为商铺,建筑面积为3842平米。
步行5分钟至静安寺交通枢纽,轻松换乘地铁2号线、7号线
傲居上海市中心核心位置,综合交通网络近在咫尺
· 距东西交通动脉延安路高架仅500米
· 距南北交通干道南北高架不到3公里
· 距上海市中心地标人民广场约3公里
· 距虹桥机场约12公里,距浦东国际机场约48公里,毗邻上海机场城市航站楼
SOHO东海广场身处上海南京西路CBD,周边五星级酒店林立,文化娱乐场所汇聚,国内外名企云集,并已成为国际一线奢侈品牌、精英人士聚集的时尚中心。
知名入驻企业
法国阳狮集团、德意志联邦共和国驻上海总领事馆、苹果、希思黎(SISLEY)、迪奥、伽蓝集团
超5A写字楼高标准,外部以落地窗为墙面,视野宽广,几乎可以鸟瞰整个静安区,是上海南京西路的地标性建筑。

